| 所在地 | 賃料 | 更新日 |
|---|---|---|
| 茨木市駅前3丁目 | 44万円 | 2026年3月16日 |
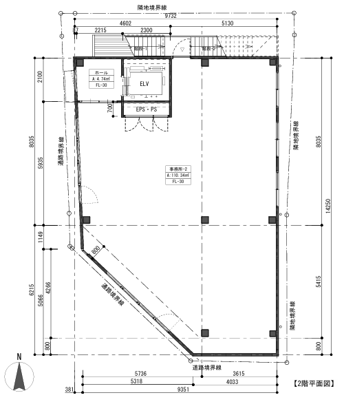
茨木市新築テナントビル「いばらきBASE」2階 家賃44万円 詳細
茨木市駅前3丁目新築テナントビル「いばらきBASE」
2階(110.34㎡・約33.3坪)家賃44万円・共益費33,000円
JR茨木駅徒歩6分・東中条町交差点の視認性の良い立地で阪急茨木市駅や南茨木駅も徒歩圏です
エレベーター付
業種相談致します
- 所在地
- 茨木市駅前3丁目
- 交通
- JR茨木駅徒歩6分
- 賃料
- 44万円
- 共益費
- 33,000円
- 敷金
- 家賃の2ヶ月分
- 礼金
- 家賃の2ヶ月分
- 保証金
- −
- 解約引
- −
- 専有面積
- 110.34㎡m2
- 築年月
- 令和7年5月竣工
- 種別
- 店舗・事務所
- 構造
- 鉄骨造
- 所在階/階数
- 2/3
- 現況
- 空き
- 取引態様
- 仲介















