| 所在地 | 価格 | 更新日 |
|---|---|---|
| 茨木市山手台4丁目 | 1,680万円(税込) | 2025年12月1日 |
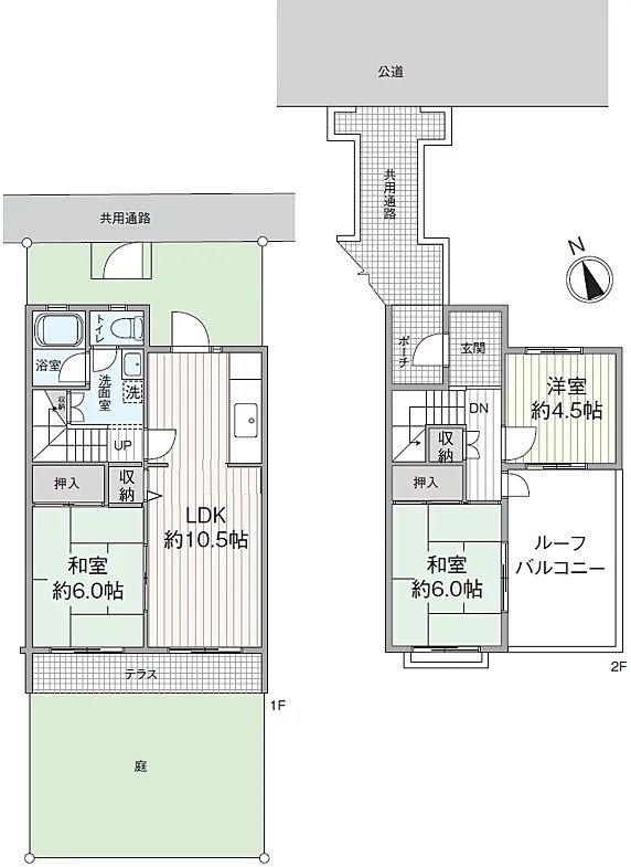
山手台4丁目テラスハウス 1680万円 詳細

鉄筋コンクリート・鉄骨造2階建テラスハウス
2階玄関、眺望良好です
お庭でガーデニングが楽しめます
- 物件番号
- 20251202
- 価格
- 1,680万円(税込)
- 所在地
- 茨木市山手台4丁目
- 交通
- JR茨木駅バス28分保育園前停徒歩4分
- 土地面積
- 93.11m2
- 道路
- 北側公道6m
- 私道負担
- 別途共有持ち分有り
- 地目
- 宅地
- 用途地域
- 第1種中高層住居専用地域
- 建ぺい率
- 60%
- 容積率
- 200%
- 建延面積
- 70.39m2
- 間取
- 3LDK
- 構造
- 鉄筋コンクリート造
- 階数
- 2階建
- 駐車場
- 3,000円/月 ※令和7年11月現在空き有り
- 築年月
- 昭和53年11月
- 現況
- 空室
- 引渡日
- 相談
- 取引態様
- 仲介
- 備考
- ※管理組合有り(規約有り ※管理費3,000円/月































